A man holding a tablet with a floor plan and a smartphone, standing in a bright, open-concept living room and kitchen area.

AS-Built Drawings
&
Existing Conditions Documentation

Accurate measurements and existing conditions

Measured Drawings for Clarity and Planning

I create as-built floor plans and existing conditions drawings based on:

  • On-site measurements

  • Review of older or incomplete drawings

  • Careful verification of real-world conditions

These drawings are ideal for:

  • Renovation planning

  • Permit submissions

  • Contractor coordination

  • Real-estate listings and marketing

No third-party apps. No uploading interior photos or personal property data. Just clear, professional documentation.

Detailed floor plan of a condo unit with labeled rooms including porch, bedrooms, bathrooms, kitchen, living and dining rooms, hallways, closets, pantry, laundry, and entry points.
Floor plan of a two-story house with labeled rooms, including the living room, dining room, kitchen, pantry, mudroom, garage, office, entry, closets, bathrooms, bedrooms, hallways, laundry room, and attic stairs. The plan is for a house in Framingham, MA, with total square footage of 2722.
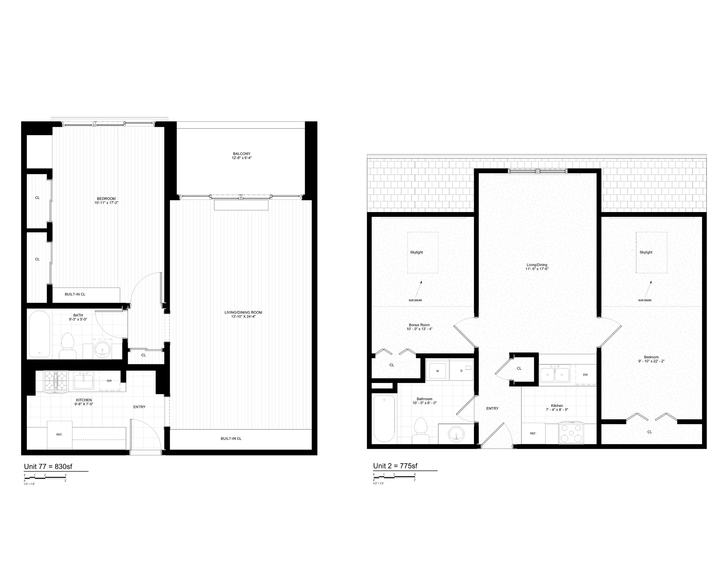
Floor plans of two residential units, labeled Unit 77 and Unit 2, showing layout of rooms including bedrooms, bathrooms, kitchens, living/dining areas, balconies, skylights, closets, and entry points.

Have a project in mind?

Let’s talk about your goals and ideas